武威344平米水果玉米预万博娱乐平台电脑版 工程-万能制冷
来源: 作者: 更新于:2022年12月02日 10时阅读:0
武威344平米水果玉米预万博娱乐平台电脑版 工程信息
冷库尺寸 |
18*19.1*5 |
冷库类型 |
预冷库 |
冷库温度 |
-5℃ |
货物存放类型 |
水果玉米 |
单间日入库量(按总入库量的15%计算)/T |
30.3 |
机组型号 |
RC2-300B |
制冷剂 |
R22 |
冷凝方式 |
蒸发式冷凝器 |
化霜方式 |
水冲霜 |
地址 |
武威 |
一、工程设计
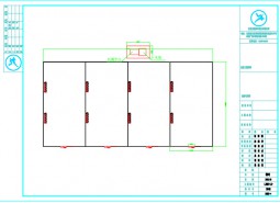
1、武威344平米水果玉米预冷库平面设计图
2、设计标准
《万博娱乐平台电脑版 标准 GB 50072-2021》
《制冷设备安装工程施工及验收规范》
《机械设备安装工程施工及验收规范》
《工业管道及设备绝热工程施工及验收规范》
《工业设备及管道绝热工程质量检验评定标准》
《工业管道施工及验收规范》
用户需求
3、制冷设备选择
3.1 压缩机的选择
制冷系统依照经济、适用,便于后续维护保养的原则选择。本制冷系统采用单机单控方案,制冷设备分别对应单间冷库。制冷剂采用二氟一氯甲烷(氟利昂 R22),具有无毒、无味、不燃的优点。
据计算冷库的制冷压缩机品牌选用汉钟螺杆压缩机,压缩机型号为RC2-300B。
3.2 其他设备选择
蒸发器选择DDS250冷风机,冷风机外壳采用优质钢板,磷化静电喷涂工艺,耐腐蚀、外形美观。盘管采用光亮性铜管,错排式布局设计。利用机械涨管工艺,使铜管与翅片紧密结合,换热效果更好;蒸发方式选择热水冲霜。
水冲霜的优点是除霜操作简单且易于实现自动控制,缺点是电耗水耗较大,除霜成本较高,一般情况下爱水冲霜的方法适用于冷风机的除霜,单独除霜时结霜速度慢,霜层比较薄。
二、水果玉米冷库贮藏温度湿度要求

1、水果玉米冷库保鲜温湿度要求
水果玉米冷库贮藏的适宜温度为-5℃,贮藏期间要保证冷库的温度恒定。如果冷库温度过高,玉米的呼吸作用会加强,营养物质流失加快,长时间会导致腐烂变质。如果温度过低,会产生冷害,影响贮藏品质。预冷库的湿度设置为95-98%,如果湿度过高, 鲜玉米易结露腐烂。湿度太低, 鲜玉米易失水失重并变软、皱缩, 失去食用价值。
2、水果玉米贮藏期间注意事项
储藏期间库门要关严实,避免冷库内冷量的流失;
减少不必要的进库次数和冷库内部作业时间,人体和货物的进出、库门的开关都会对库温、湿度造成影响。
定期抽样检查,检查茄子是否出现病害、冷害、失水及腐烂等果实,如果出现及时剔除。
冷库制冷的蒸发器要注意经常除霜,以免影响制冷效果。
三、玉米冷库保鲜资讯相关推荐
亲,甘肃万能制冷设备公司为您提供一对一的咨询服务(万博娱乐平台电脑版 造价,冷库制冷设备订购、万博苹果版闪退 项目建造安装),您可以拨打咨询热线:18693165151,万能制冷给您专业、详细的解答。

注:本站稿件未经许可不得转载,转载请保留出处及源文件地址
88%的用户还看了以下万博苹果版闪退 案例
-
写在前面的话:2022年8月1日山丹县兴业农资公司..
-
内蒙古阿拉善蔬菜预冷库恒温库安装工程项目信息工程名..
-
2021年7月5日山丹县郇禄农业家庭农场业主和万能..
-
蔬菜保鲜冷库的主要功能是抑制微生物繁殖和酶的活性,..
-
山丹县农业种植面积发达,蔬菜种植占比重大。甘肃省张..
-
水果冷库可以通过低温和湿度环境抑制微生物的繁殖,降..
-
甘肃万能制冷设备公司为甘肃跃林三农实业科技有限公司..
-
黄记煌对于美食的加工要求极为苛刻。菜品中的部分食材..
-
渭县德源祥产业园为进一步提高山楂品质,由万能制冷设..
-
2022年8月19日金昌市和万能制冷公司签订蔬菜保..
-
水果富含丰富维生素,在广河县有大量的水果种植园,农..
-
炎热夏天水果常温下储藏困难,保鲜期大打折扣。兰州市..
-
万能制冷为您提供西本地区(甘肃、青海、宁夏)土豆冷..
-
宕昌县南阳镇江玉村地处甘肃省陇南市,近年来江玉村着..
-
新鲜水果常温下保质期很短,目前好储藏技术是水果冷库..
-
蔬菜保鲜好坏关系到蔬菜销售经济价值,甘肃裕达凯莱农..
-
甘肃建伟炸酱主食中央厨房主营炸酱面食材加工,蔬菜食..
-
定西陇西县文峰镇尉家店村农业合作社与万能制冷达成合..
-
甘肃正宁县风吹麦浪种植家庭农场拥有大面积蔬菜种植大..
-
香菇是菌类的一种,大批量保鲜需放在保鲜冷库。万能制..
-
蒜薹、芹菜在常温下保鲜周期短,低温冷藏技术可延长蔬..
-
2021年4月坐落于兰州西固区天畅农贸市场的业主和..
-
万能制冷公司根据客户需求,设计建造15平米果蔬保鲜..
-
万能制冷公司为定西客户量身定制90平米蔬菜中药材保..
-
定西安定区符家川蔬菜、中药材冷库安装面积为73平米..
-
宁夏吴忠市盐池县蔬菜冷库安装工程,压缩机采用格力热..
-
宁夏青铜峡市蔬菜冷库安装工程,压缩机采用格力热氟融..
-
宁夏吴忠市红石堡区蔬菜冷库安装工程,压缩机采用热氟..
-
宁夏吴忠市利通区蔬菜保鲜库安装工程,压缩机采用热氟..
-
宁夏石嘴山市蔬菜保鲜库安装工程,压缩机采用热氟融霜..
-
宁夏银川市贺兰县蔬菜保鲜冷库安装工程,压缩机采用热..
-
宁夏银川市灵武区蔬菜保鲜库安装工程,压缩机采用热氟..
-
宁夏银川市金凤区蔬菜冷库安装工程,压缩机采用热氟融..
-
宁夏银川市兴庆区蔬菜保鲜冷库安装工程,压缩机采用热..
-
宁夏银川热氟融霜冷库安装工程,压缩机采用热氟融霜制..
-
临夏格力热氟融霜蔬菜冷库安装工程,压缩机采用格力热..
-
陇南市宕昌县格力热氟融霜蔬菜保鲜库安装工程,压缩机..
-
陇南礼县格力蔬菜保鲜库安装工程,压缩机采用格力热氟..
-
陇南西和县格力冷冻冷藏蔬菜冷库安装工程,压缩机采用..
-
陇南两当县格力冷冻冷藏蔬菜保鲜冷库安装工程,压缩机..
-
定西市岷县格力冷冻冷藏蔬菜保鲜库安装工程,冷库门尺..
-
庆阳市合水县格力冷冻冷藏蔬菜保鲜库安装工程,压缩机..
-
庆阳市西峰区格力冷冻冷藏热氟融霜蔬菜保鲜库安装工程..
-
庆阳市格力冷冻冷藏热氟融霜蔬菜保鲜库安装工程,压缩..
-
酒泉市肃州区格力冷冻冷藏热氟融霜蔬菜保鲜库安装工程..
-
平凉市格力冷冻冷藏热氟融霜蔬菜冷库安装工程,化霜方..
-
张掖市山丹县格力热氟融霜冷冻冷藏蔬菜保鲜库安装工程..
-
张掖市高台县格力冷冻冷藏蔬菜保鲜库安装工程,冷库尺..
-
张掖市冷冻冷藏格力热氟融霜水果保鲜库安装工程,压缩..
-
张掖市甘州区格力热氟融霜蔬菜保鲜冷库安装工程,压缩..
-
武威古浪县格力热氟融霜肉类冷库安装工程,压缩机采用..
-
武威凉州区格力热氟融霜蔬菜冷库安装工程,压缩机采用..
-
甘肃省武威市格力热氟融霜蔬菜冷库安装工程,压缩机采..
-
甘肃省天水市麦积区格力热氟融霜保鲜库安装工程,压缩..
-
甘肃省天水市清水县格力冷库安装工程,压缩机采用格力..
-
甘肃省天水市清水县格力热氟融霜蔬菜保鲜库安装工程,..
-
甘肃省白银市白银区格力冷库安装工程,压缩机采用格力..
-
甘肃省白银市会宁县格力热氟融霜保鲜库安装工程,压缩..
-
白银市靖远县格力热氟融霜蔬菜冷库安装工程,压缩机采..
-
金昌市永昌县格力热氟融霜水果保鲜库安装工程,压缩机..
-
金昌市金川区格力保鲜冷库安装工程,压缩机采用格力热..
-
嘉峪关市格力热氟融霜冷库安装工程,压缩机采用格力集..
-
甘肃兰州皋兰县格力冷冻冷藏库安装工程,压缩机采用格..
-
甘肃兰州永登县格力热氟融霜保鲜库安装工程,压缩机压..
-
甘肃合作市格力冷冻冷藏库安装工程,压缩机采用格力热..
-
甘肃迭部县格力冷冻冷藏库安装工程,压缩机采用格力热..
-
甘肃甘南夏河县格力200平米冷冻冷藏库安装工程,压..
-
陇南市成县108平米格力蔬菜冷库安装工程,压缩机采..
-
陇南市西和县300平米格力蔬菜保鲜库安装工程,压缩..
-
陇南市138平米格力蔬菜冷库安装工程,压缩机采用格..
-
定西市岷县67平米格力果蔬冷库安装工程,压缩机采用..
-
定西市临洮县格力水果冷库安装工程,压缩机采用格力热..
-
定西市渭源县29平米格力冷库安装工程,压缩机采用格..
-
庆阳市宁县300平米格力冷库安装工程,压缩机采用格..
-
庆阳市镇原县207平米格力果蔬冷库安装工程,压缩机..
-
庆阳市华池县格力蔬菜冷库安装工程,压缩机采用格力一..
-
庆阳市庆城县格力冷库安装工程,压缩机采用格力一体式..
-
庆阳市西峰区138平米格力冷库安装工程,压缩机采用..
-
酒泉市42平米格力蔬菜冷库安装工程,压缩机采用格力..
-
华亭市14.7平米格力冷库安装工程,压缩机采用格力..
-
平凉市崇信县1200平格力热氟融霜成套机组安装工程..
-
平凉市72平米格力成套机组安装工程,压缩机采用格力..
-
张掖市民乐县220平辣椒保鲜库安装工程,压缩机采用..
-
张掖市60平米蔬菜冷库安装工程,压缩机采用艾默生谷..
-
武威市天祝县79平米果蔬冷库安装工程,压缩机采用艾..
-
武威市古浪县果蔬保鲜库安装工程,压缩机采用汉钟精机..
-
天水市清水县蔬菜保鲜库安装工程,压缩机采用艾默生谷..
-
天水武山县120平米水果冷库安装工程,压缩机选用艾..
-
白银市水果保鲜库安装工程,压缩机采用艾默生谷轮 Z..
-
嘉峪关市峪泉镇138平米蔬菜冷库安装工程,压缩机采..
-
兰州市16平米水果保鲜库安装工程,压缩机采用艾默生..
-
兰州市127平米蔬菜保鲜冷库安装工程,压缩机采用艾..
-
兰州市皋兰县67平米果蔬冷藏库安装工程,压缩机采用..
-
甘南迭部县40平米果蔬冷库安装工程,压缩机采用艾默..
-
定西市通渭县果蔬预冷库安装工程,压缩机采用艾默生谷..
-
庆阳市庆城县8平米蔬菜保鲜库安装工程,压缩机采用艾..
-
酒泉市金塔县96平米蔬菜保鲜库安装工程,压缩机采用..
-
酒泉金塔县300平米蔬菜保鲜库安装工程,压缩机采用..
-
酒泉市165平米蔬菜保鲜库安装工程,压缩机采用艾默..
-
平凉市崆峒区120平果蔬冷库安装工程,压缩机采用艾..
-
平凉市崇信县96平米蔬菜保鲜库安装工程,压缩机采用..
-
甘肃省武威市古浪县蔬菜保鲜库安装工程,压缩机采用艾..
-
武威市凉州区18平米冷冻库安装工程,压缩机采用比泽..
-
甘肃天水武山县200平米蔬菜保鲜库安装工程,压缩机..
-
金昌市金川区30平米蔬菜保鲜库安装工程,压缩机采用..
-
金昌市50平米蔬菜保鲜库安装工程,压缩机采用艾默生..
-
嘉峪关文殊镇165平蔬菜保鲜库安装工程,压缩机采用..
-
兰州永登县8.75平米保鲜冷库安装工程,压缩机采用..
-
兰州市皋兰县水果保鲜冷库安装工程,压缩机采用艾默生..
-
甘肃兰州96平米蔬菜保鲜库安装工程,压缩机采用艾默..
-
兰州市207平米果蔬冷库安装工程,化霜方式采用热氟..
-
张掖临泽县果蔬冷库安装,压缩机采用艾默生谷轮压缩机..
-
兰州市永登县保鲜冷库,压缩机采用艾默生谷轮压缩机型..
-
兰州蔬菜保鲜冷库安装工程,压缩机采用艾默生谷轮压缩..
-
甘肃庆阳蔬菜冷库安装工程,压缩机采用艾默生谷轮压塑..
-
天水清水县蔬菜保鲜冷库安装工程,压缩机采用艾默生谷..
-
嘉峪关文殊镇冷藏库安装工程案列,压缩机采用艾默生z..
-
兰州市榆中县粉条冷库安装,压缩机采用钟汉精机rc1..
-
白银蔬菜保鲜万博苹果版闪退 安装案列 压缩机采用艾默生谷轮..
-
万能制冷安装白银预冷冷冻库,玉米冷库的温度为-18..
-
万能制冷安装天畅蔬菜保鲜万博苹果版闪退 ,冷库的设计温度为..
-
甘肃永登200平米保鲜预万博苹果版闪退 安装,该工程为蔬菜..
-
万能制冷安装河南固始县冷库安装工程,冷库的设计温度..
-
万能制冷安装金昌蔬菜冷库,冷库的设计温度为0-5℃..
-
万能制冷安装金昌永昌蔬菜保鲜冷库,冷库的设计温度为..
-
万能制冷安装甘肃武威民勤1200平米蔬菜保鲜冷库,..
-
万能制冷安装兰州永登蔬菜预万博苹果版闪退 ,冷库的设计温度..
-
万能制冷安装天水秦安苹果万博苹果版闪退 ,冷库的设计温度为..
-
万能制冷安装的本工程为张掖蔬菜预冷库项目。冷库保温..
-
甘肃兰州蔬菜保鲜库安装工程,压缩机采用艾默生谷轮压..
-
甘肃庆阳456平米蔬菜保鲜万博娱乐平台电脑版 案例-万能制冷
万能制冷设计甘肃庆阳456平米蔬菜保鲜万博苹果版闪退 ,冷..
-
万能制冷设计甘肃陇南蔬菜保鲜冷库,冷库的设计温度为..
-
万能制冷设计甘肃兰州蔬菜保鲜冷库,冷库的设计温度为..
-
内蒙额济纳旗24平米蔬菜保鲜万博娱乐平台电脑版 工程-万能制冷
万能制冷设计内蒙额济纳旗保鲜万博苹果版闪退 ,冷库的设计温..
-
甘肃定西通渭180平米蔬菜保鲜万博娱乐平台电脑版 方案-万能制..
万能制冷设计甘肃定西保鲜万博苹果版闪退 ,冷库的设计温度为..
-
万能制冷设计青海蔬菜保鲜冷库,冷库的设计温度为0-..
-
万能制冷设计甘肃甘谷水果保鲜万博娱乐平台电脑版 案例,冷库的设..
-
甘肃张掖1200平米蔬菜预万博娱乐平台电脑版 案例-万能制冷
万能制冷设计甘肃张掖蔬菜预冷库,冷库的设计温度为0..
-
万能制冷设计甘肃兰州新区蔬菜保鲜冷库,冷库的设计温..
-
甘肃武威2090平米蔬菜保鲜预万博娱乐平台电脑版 案例-万能制..
万能制冷设计甘肃武威蔬菜预冷库方案,冷库的设计温度..
-
甘肃张掖山丹1000平米蔬菜预冷低温万博娱乐平台电脑版 方案-..
万能制冷设计甘肃张掖山丹1000平米蔬菜保鲜冷库,..
-
甘肃庆阳846平米蔬菜保鲜万博娱乐平台电脑版 工程-万能制冷
万能制冷设计甘肃庆阳847平米保鲜冷库,冷库的设计..
-
甘肃白银景泰252平米苹果保鲜万博娱乐平台电脑版 案例-万能制..
万能制冷设计甘肃白银景泰苹果保鲜冷库,冷库的设计温..
-
甘肃定西漳县108平米保鲜万博娱乐平台电脑版 工程-万能制冷
万能制冷设计甘肃定西漳县保鲜冷库,冷库的保温结构选..
-
万能制冷设计甘肃临夏积石山县保鲜冷库方案,冷库的设..
-
万能制冷设计甘谷冷库方案,冷库的面积为28平米,冷..
-
甘肃万能制冷设计嘉峪关酒店冷藏保鲜冷库,保鲜冷库的..
-
万能制冷设计甘肃兰州20平米保鲜冷藏库方案,保鲜冷..
-
万能制冷设计甘肃临夏80平米蔬菜冷库,冷库的设计温..
-
万能制冷设计甘肃玉门冰瓶冷库方案,该冷库为预冷库。..
-
万能制冷设计甘肃金昌豆芽冷库方案,冷库的设计温度为..
-
甘肃定西150平米中药材保鲜万博娱乐平台电脑版 方案-万能制冷
万能制冷设计甘肃定西中药材冷库,冷库的设计温度为0..
-
甘肃张掖山丹2000平米预万博娱乐平台电脑版 工程-万能制冷
万能制冷设计甘肃张掖山丹蔬菜预冷库,冷库的设计温度..
-
万能制冷设计240平米甘肃定西通渭蔬菜保鲜冷库方案..
-
万能制冷设计甘肃临夏72平米果蔬保鲜冷库,冷库的设..
-
万能制冷设计甘肃古浪27平米果蔬冷库方案。冷库的设..
-
万能制冷设计甘肃玉门冷藏冷冻库方案,冷库的维护结构..
-
甘肃兰州1295平米正大低温生鲜万博娱乐平台电脑版 方案-万能..
万能制冷设计甘肃兰州正大低温生鲜万博苹果版闪退 ,冷库维护..
-
万能制冷设计青海30平米乳制品冷库,冷库的设计温度..
-
甘肃酒泉370平米果蔬保鲜万博娱乐平台电脑版 案例-万能制冷
万能制冷设计甘肃酒泉果蔬保鲜冷库,冷库的设计温度为..
-
万能制冷设计甘肃张掖山丹土豆冷库,冷库的设计温度为..
-
一、定西144平米蔬菜保鲜万博娱乐平台电脑版 建造方案基础信息..
-
万能制冷设计甘谷保鲜冷库,冷库的设计温度为0-5℃..
-
甘肃天祝504平米蔬菜保鲜万博娱乐平台电脑版 方案-万能制冷
万能制冷设计甘肃天祝504平米蔬菜保鲜冷库,冷库的..
-
万能制冷设计甘肃天水35平米果蔬保鲜冷库,冷库的设..
-
万能制冷设计甘肃天水270平米苹果保鲜冷库,冷库的..
-
万能制冷设计河南冷藏库方案,温度设计为0-18℃,..
-
甘肃张掖高台县150平米蔬菜保鲜万博娱乐平台电脑版 案例-万能..
万能制冷设计甘肃高台县蔬菜保鲜冷库方案,冷库的设计..
-
甘肃武威1200平米蔬菜保鲜万博娱乐平台电脑版 方案-万能制冷
万能制冷设计甘肃武威2500平米蔬菜保鲜冷库,冷库..
-
甘肃张掖2500平米蔬菜保鲜万博娱乐平台电脑版 方案-万能制冷
万能制冷设计甘肃张掖蔬菜保鲜冷库,冷库的设计温度为..
-
甘肃金昌市42平米蔬菜保鲜万博娱乐平台电脑版 方案-万能制冷
万能制冷设计甘肃金昌蔬菜保鲜冷库,冷库面积为42平..
-
河南固始县120平米蔬菜保鲜万博娱乐平台电脑版 工程案例-万能..
万能制冷设计河南蔬菜保鲜冷库,冷库的设计温度为0-..
-
万能制冷设计甘肃平凉28平米蔬菜保鲜冷库,冷库的设..
-
万能制冷设计甘肃白银玉米冷冻库方案,冷库的设计温度..
-
万能制冷设计甘肃定远126平蔬菜保鲜冷库,设计温度..
-
甘肃兰州新区30平米蔬菜保鲜万博娱乐平台电脑版 案例-万能制冷
万能制冷设计甘肃兰州新区蔬菜保鲜冷库,蔬菜冷库的设..
-
甘肃武威648平米土豆保鲜万博娱乐平台电脑版 案例-万能制冷
万能制冷设计甘肃武威土豆保鲜冷库,冷库的设计温度为..
-
万能制冷设计甘肃香蕉冷库案例,冷库的设计温度为12..
-
万能制冷设计甘肃兰州蔬菜保鲜冷库,冷库的设计温度为..
-
120平米甘肃兰州苹果保鲜万博娱乐平台电脑版 案例-万能制冷
甘肃万能制冷设计兰州120平米蔬菜保鲜冷库,设计温..
-
万能制冷设计甘肃天水900平米苹果保鲜冷库,冷库的..
-
甘肃白银靖远68平蔬菜保鲜万博娱乐平台电脑版 案例-万能制冷
万能制冷设计甘肃白银靖远蔬菜冷库,冷库的设计温度为..
-
万能制冷设计甘肃天水蔬菜冷冻库,设计温度为-18℃..
-
万能制冷设计甘肃天水60平米粉条冷冻库,冷库的设计..
-
1600平米甘肃张掖果蔬预万博娱乐平台电脑版 案例-万能制冷
万能制冷设计1600平米甘肃张掖果蔬保鲜冷库方案。..
-
万能制冷设计甘肃天水10平米粉条冷冻库,设计温度为..
-
万能制冷设计甘肃平凉1008平米土豆保鲜冷库,土豆..
-
1152平米甘肃平凉苹果保鲜万博娱乐平台电脑版 方案-万能制冷
万能制冷设计甘肃平凉苹果保鲜冷库,保鲜冷库的设计温..
-
万能制冷设计甘肃天水苹果保鲜冷库,苹果保鲜冷库的设..
-
800平米甘肃天水苹果保鲜万博娱乐平台电脑版 方案-万能制冷
万能制冷设计800平米甘肃天水苹果保鲜冷库方案,冷..
-
甘肃白银景泰90平米果蔬保鲜万博娱乐平台电脑版 方案-万能制冷
万能制冷设计甘肃白银景泰90平米果蔬保鲜冷库方案,..
-
万能制冷设计甘肃张掖粉条冷藏库设计工程方案,设计温..
-
万能制冷设计甘肃兰州彭家坪葡萄保鲜万博苹果版闪退 方案。设..
-
万能制冷设计甘肃兰州新区24平米百合万博苹果版闪退 方案,..
-
万能制冷设计甘肃金昌蔬菜(萝卜)预冷库方案,预冷库..
-
900平米甘肃天水苹果保鲜万博娱乐平台电脑版 方案-万能制冷
万能制冷设计900平米甘肃天水苹果保鲜冷库。设计温..
-
万能制冷设计天水苹果保鲜冷库,设计温度为0-5℃,..
-
万能制冷设计新疆120平米果蔬保鲜冷库 设计温度0..
-
万能制冷设计甘肃敦煌水果冷库,设计温度为0-5℃,..
-
万能制冷设计张掖西蓝花万博苹果版闪退 ,设计温度为0-5℃..
-
甘肃张掖12平米果蔬保鲜万博娱乐平台电脑版 工程案例-万能制冷
一、甘肃张掖12平米果蔬保鲜万博娱乐平台电脑版 建造方案基础信..
-
甘肃定西岷县300平米蔬菜保鲜万博娱乐平台电脑版 工程-万能制..
万能制冷设计甘肃定西岷县300平米蔬菜保鲜万博苹果版闪退 ..
-
万能制冷设计甘肃定西通渭粉条冷库方案。设计温宿为0..
-
兰州市皋兰30平米菜花保鲜万博娱乐平台电脑版 工程-万能制冷
万能制冷设计兰州市皋兰30平米菜花保鲜万博苹果版闪退 方案..
-
陇南市桥头村192平米蔬菜保鲜万博娱乐平台电脑版 工程-万能制..
万能制冷设计陇南市桥头村192平米蔬菜保鲜万博苹果版闪退 ..
-
兰州毅德城18平米水果保鲜万博娱乐平台电脑版 工程-万能制冷
万能制冷设计兰州毅德城18平米水果保鲜万博苹果版闪退 方案..
-
万能制冷设计陇南徽县50平米香蕉冷库案例,设计温度..
-
万能制冷设计庆阳840平米苹果保鲜冷库,设计温度为..
-
万能制冷设计定西23平米辣椒保鲜冷库,辣椒冷库的设..
-
万能制冷设计兰州榆中21平米百合保鲜冷库,设计温度..
-
定西市15.2平米果蔬保鲜万博娱乐平台电脑版 工程-万能制冷
万能制冷设计定西市15.2平米果蔬保鲜冷库。冷库维..
-
甘肃甘州153平米果蔬保鲜万博娱乐平台电脑版 工程-万能制冷
项目基本信息冷库名称果蔬保鲜库库温要求(0℃~-5..
-
张掖山丹1103平米土豆保鲜万博娱乐平台电脑版 工程-万能制冷
项目基本信息冷库名称果蔬保鲜库库温要求(0~+5℃..
-
项目基本信息冷库名称苹果保鲜库库温要求(-5~+5..
-
甘肃万能制冷设计张掖山丹水果冷库,冷库的设计温度为..
-
万能制冷设计甘肃敦煌水果保鲜冷库,冷库的设计温度为..
-
项目基本信息冷库类型保鲜库储藏货物蔬菜库体外形尺寸..
-
项目基本信息冷库类型保鲜库储藏货物果蔬冷库库体外形..
-
张掖市民乐县1760平米蔬菜预万博娱乐平台电脑版 工程-万能制..
项目基本信息冷库名称蔬菜预冷库库温要求(-5~+5..
-
项目基本信息冷库类型保鲜库储藏货物蔬菜库体整体外形..
-
白银靖远1054平米蔬菜保鲜万博娱乐平台电脑版 工程-万能制冷
项目基本信息冷库类型保鲜库储藏货物蔬菜1号库体外径..
-
项目基本信息冷库类型保鲜库储藏货物蔬菜库体外径尺寸..
-
项目基本信息冷库类型保鲜库储藏货物蔬菜冷库面积52..
-
甘肃陇南405平米蔬菜保鲜万博娱乐平台电脑版 工程-万能制冷
冷库信息30*13.5*4面积405㎡体积m³16..
-
项目基本信息冷库类型冷藏库/冷冻库储藏货物玉米冷藏..
-
项目基本信息冷库类型恒温库/冷藏库储藏货物百合恒温..
-
甘肃天水156平米苹果保鲜万博娱乐平台电脑版 工程-万能制冷
万能制冷设计甘肃天水苹果保鲜冷库,冷库的设计温度为..
-
新疆1000平米沙棘果保鲜冷冻万博娱乐平台电脑版 工程-万能制..
万能制冷设计新疆沙棘果保鲜冷库,万博娱乐平台电脑版 温度为-4..
-
1.气调库的构成气调库是一个综合性系统优化控制过程..
-
项目基本信息冷库类型保鲜库储藏货物土豆总库体外径尺..
-
冷库名称猪肉冷冻库/保鲜库库温要求(-~10-18..
-
项目基本信息冷库类型保鲜库储藏货物果蔬库体外径尺寸..
-
青海果洛达日县115平米蔬菜保鲜万博娱乐平台电脑版 工程-万能..
项目基本信息冷库类型保鲜库储藏货物蔬菜库体外径尺寸..
-
万能制冷设计会宁水果保鲜冷库,冷库的设计温度为0-..
-
定西市漳县127平米蔬菜预万博娱乐平台电脑版 工程-万能制冷
项目基本信息冷库类型预冷库储藏货物蔬菜库体外径尺寸..
-
璧山酒店158平米蔬菜肉类高温低温万博娱乐平台电脑版 工程-万..
项目基本信息冷库类型高温库/低温库储藏货物蔬菜/肉..
-
项目基本信息冷库类型保鲜库储藏货物果蔬库体外径尺寸..
-
万能制冷设计宁夏速冻冷库,冷库的设计温度为-35℃..
-
项目基本信息冷库类型速冻/冷藏库储藏货物树莓速冻库..
-
项目基本信息冷库类型保鲜库储藏货物树莓库体外径尺寸..
-
万能制冷设计甘肃白银西瓜冷库,冷库的设计温度为0-..
-
万博苹果版闪退 设计参数信息设计基础参数名称长(m)宽(m..
-
临夏康乐330平米香菇保鲜万博娱乐平台电脑版 工程-万能制冷
项目基本信息冷库类型保鲜库储藏货物香菇库体外径尺寸..
-
项目基本信息外尺寸/m2.5*4.5*2.7冷库面..
-
项目基本信息冷库类型保鲜库蒸发方式冷风机功率/KW..
-
项目基本信息外尺寸/m3.6*5.4*3.4冷库面..
-
项目基本信息冷库类型保鲜库蒸发方式冷风机功率/KW..
-
项目基本信息冷库类型保鲜库蒸发方式冷风机功率/KW..
-
临夏12.8平米樱桃草莓保鲜万博娱乐平台电脑版 工程-万能制冷
项目基本信息冷库类型保鲜库蒸发方式冷风机功率/KW..
-
项目基本信息冷库类型保鲜库蒸发方式冷风机功率/KW..
-
甘肃张掖1820平米西蓝花预万博娱乐平台电脑版 工程-万能制冷
项目基本信息冷库类型货物名称总冷库尺寸单间冷库尺寸..
-
兰州西固100平米果蔬保鲜万博娱乐平台电脑版 工程-万能制冷
项目基本信息冷库类型保鲜库蒸发方式冷风机功率/KW..
-
天水秦安600立方苹果保鲜万博娱乐平台电脑版 工程-万能制冷
万能制冷设计天水秦安苹果保鲜冷库,冷库的设计温度为..
-
万能制冷设计天水秦安144立方樱桃预冷库,冷库的设..
-
项目基本信息冷库类型预冷库蒸发方式冷风机功率/KW..
-
万能制冷设计青海30平米蔬菜保鲜冷库,蔬菜冷库的设..
-
临夏积石山县120平米胡萝卜万博娱乐平台电脑版 工程-万能制冷
临夏积石山县120平米胡萝卜万博娱乐平台电脑版 工程信息冷库尺..
-
甘肃192平米苹果保鲜万博娱乐平台电脑版 工程信息冷库尺寸12..
-
甘肃60平米蔬菜保鲜万博娱乐平台电脑版 工程信息冷库尺寸10*..
-
环县20平米蔬菜保鲜万博娱乐平台电脑版 工程信息冷库尺寸4*5..
-
天水秦安80平米苹果预万博娱乐平台电脑版 工程信息冷库尺寸10..
-
酒泉89.6立方蔬菜保鲜万博娱乐平台电脑版 工程信息冷库尺寸4..
-
嘉峪关253平米蔬菜保鲜万博娱乐平台电脑版 工程信息冷库尺寸2..
-
甘肃205.65平米果蔬保鲜万博娱乐平台电脑版 工程-万能制冷
甘肃205.65平米果蔬保鲜万博娱乐平台电脑版 工程信息冷库尺..
-
甘肃300平米西蓝花预万博娱乐平台电脑版 工程信息冷库尺寸15..
-
敦煌30平米水果保鲜万博娱乐平台电脑版 工程信息冷库尺寸5*6..
-
兰州新区56.3平香蕉保鲜万博娱乐平台电脑版 工程-万能制冷
万能制冷设计兰州新区56.3平香蕉保鲜冷库,保鲜冷..
-
固原421.7平瓜菜保鲜万博娱乐平台电脑版 工程信息冷库尺寸2..
-
定西2250立方土豆保鲜万博娱乐平台电脑版 工程信息冷库尺寸3..
-
定西360平粉条保鲜万博娱乐平台电脑版 工程信息单间冷库尺寸8..
-
兰州城关区24立方蔬菜保鲜万博娱乐平台电脑版 工程-万能制冷
兰州城关区24立方蔬菜保鲜万博娱乐平台电脑版 工程信息冷库尺寸..
-
什川127平米软儿梨冷藏库设计工程信息冷库尺寸15..
-
天水42平蔬菜保鲜万博娱乐平台电脑版 工程信息冷库尺寸6*7*..
-
临夏积石山120平茄子保鲜万博娱乐平台电脑版 工程-万能制冷
临夏120平茄子保鲜万博娱乐平台电脑版 工程信息冷库尺寸20*..
-
定西150平蔬菜预万博娱乐平台电脑版 工程信息冷库尺寸15*2..
-
天水15平米果蔬保鲜万博娱乐平台电脑版 工程信息冷库尺寸3*5..
-
兰州54.6平米百合保鲜万博娱乐平台电脑版 工程信息冷库尺寸1..
-
嘉峪关220平辣椒保鲜库设计工程信息冷库尺寸22*..
-
甘肃1620立方西兰花保鲜万博娱乐平台电脑版 工程-万能制冷
甘肃1620立方西兰花保鲜库设计工程信息冷库尺寸2..
-
甘肃陇南138平大白菜保鲜万博娱乐平台电脑版 工程-万能制冷
甘肃陇南138平大白菜蔬菜保鲜万博娱乐平台电脑版 工程-万能制..
-
甘肃定西蔬菜预万博娱乐平台电脑版 工程-万能制冷
-
青海西宁14立方水果保鲜库设计工程信息冷库尺寸2...
-
甘肃金昌63平米蔬菜保鲜库设计工程-万能制冷
-
甘肃定西蔬菜保鲜万博娱乐平台电脑版 工程案例
-
嵩山红香椿又名登封嵩阳红香椿,是河南郑州登封市少林..
-
登封芥菜是河南郑州登封市特色蔬菜,本篇万能制冷为大..
-
荥阳柿子是河南郑州荥阳市特色水果,本篇万能制冷为大..
-
新郑莲藕是河南省郑州市新郑市特产,本篇万能制冷为大..
-
河阴石榴是河南郑州荥阳市特色水果,本篇万能制冷为大..
-
新庄黄瓜是青海西宁大通县特色蔬菜,本篇万能制冷为..
-
玉树芫根是青海玉树藏族自治州特色蔬菜产品,本篇万..
-
乐都绿萝卜是青海省海东市乐都县特产,采收后批量储..
-
乐都沙果是青海省海东市乐都区特产,本篇万能制冷为大..
-
祁连黄菇是青海省海北藏族自治州祁连县特产,本篇万能..
-
宁夏菜心是宁夏回族自治区特产蔬菜,本篇万能制冷为大..
-
盐池黄花菜是宁夏回族自治区吴忠市盐池县特产蔬菜,..
-
六盘山沙棘是宁夏特色水果,主要分布在宁夏六盘山地区..
-
六盘山蚕豆是宁夏固原隆德县特产蔬菜,主要产区在隆德..
-
舟曲柿子是甘南藏族自治州特产水果,本篇万能制冷为大..
-
临潭猴头菇是甘肃甘南藏族自治州临潭县特色菌类蔬菜,..
-
西葫芦是甘肃武威古浪县特色蔬菜农产品,本篇万能制冷..
-
天祝鹿角菜是甘肃武威天祝县特色藻类蔬菜产品,因形似..
-
古浪香瓜是甘肃省武威市古浪县特产水果,又名麻疙瘩甜..
-
舟曲狼肚是甘肃武威舟曲县特色菌类蔬菜,狼肚学名为羊..
-
银蒂白兰瓜产于甘肃武威民勤县,长期保鲜建议安装水果..
-
民勤县是我国茴香重点产区,茴香又名茴香子、小茴香、..
-
民勤蜜瓜是甘肃省民勤县特产,种植历史长达50多年。..
-
板桥白黄瓜是甘肃省庆阳市合水县特色蔬菜产品,本篇万..
-
崇信芹菜是甘肃平凉崇信县特色蔬菜产品,长期保鲜建议..
-
康县黑木耳是甘肃省康县特产菌类蔬菜,本篇万能制冷为..
-
秦安白脆瓜种植历史久远,采收的鲜秦安白脆瓜长期储藏..
-
武山蒜苗选用甘肃陇南辉县周边所产紫皮大蒜,含有丰富..
-
武山韭菜是甘肃省天水武山县特色蔬菜,早在明、清《宁..
-
和政有"蚕豆之乡"之美誉,所产..
-
临夏蕨菜主产于阴湿、半阴湿山区的野生植物,素有“山..
-
漳县蚕豆栽培历史有2100多年,以马牙蚕豆、羊眼豆..
-
岷县野草莓产于甘肃定西岷县,是优质野生草莓。本篇万..
-
兰州种植韭黄已有数百年历史,本篇万能制冷为大家兰州..
-
兰州高原夏菜具有很高的质量安全水平,本篇万能制冷为..
-
兰州麻皮醉瓜是甘肃兰州县特产农产品,本篇万能制冷为..
-
兰州金妈妈杏是甘肃兰州农家品种,本篇万能制冷为大家..
-
榆中西兰花是甘肃榆中县特色蔬菜,本篇万能制冷为大家..
-
榆中莲花菜产自甘肃榆中县,本篇万能制冷为大家带来榆..
-
榆中菜花是甘肃榆中县特产蔬菜,本篇万能制冷为大家介..
-
兰州蕨菜又称佛手、龙爪菜,长期保鲜建议使用保鲜冷库..
-
榆中大白菜是甘肃榆中县特产蔬菜,本篇本篇万能制冷为..
-
兰州白兰瓜是甘肃兰州特色瓜,种植历史近五十年。本篇..
-
高台黑番茄是张掖高台县特色蔬菜,大批量储藏高台黑番..
-
山丹沙棘果是甘肃张掖山丹县特色水果,储藏鲜食山丹沙..
-
山丹发菜是甘肃张掖山丹县特色藻类蔬菜,本篇万能制冷..
-
瓜州蜜瓜是酒泉瓜州特产,批量储藏瓜州蜜瓜建议使用保..
-
徽县紫皮大蒜是甘肃陇南徽县特色蔬菜,本篇万能制冷为..
-
徽县银杏果是甘肃陇南徽县特色水果,常温状态储藏周期..
-
迭部羊肚菌是甘肃甘南特色药用菌,本篇万能制冷为大家..
-
本篇万能制冷为大家带来嘉峪关500平米蔬菜保鲜冷库..
-
本篇万能制冷为大家带来嘉峪关水果店200米水果保鲜..
-
嘉峪关发菜是甘肃嘉峪关特色菌类蔬菜,本篇万能制冷为..
-
嘉峪关甘兰是甘肃嘉峪关特色蔬菜,本篇万能制冷为大家..
-
酒泉洋葱是甘肃酒泉市的特色蔬菜,本篇万能制冷为大家..
-
天梯山人参果产自于甘肃武威凉州张义镇,常温下人参果..
-
金川甜菜是甘肃金昌市金川区特色蔬菜,本篇万能制冷为..
-
东湾绿萝卜是甘肃省金昌市金川区宁远堡镇特产,采收后..
-
永昌胡萝卜是甘肃省金昌市永昌县特产,农户采收永昌胡..
-
贾昌柿子是甘肃临夏特产,常温下不能长期储藏贾昌柿子..
-
庆阳香瓜是甘肃省庆阳市特产之一,大批量储藏香瓜建议..
-
酒泉金塔番茄是酒泉特产,批量储藏金塔番茄建议使用保..
-
酒泉白兰瓜是甘肃省特产之一,白兰瓜批量储藏适合放在..
-
张掖葡萄在常温下储藏是十分困难,放置久了会腐烂变质..
-
陇南猕猴桃常温状态储藏周期较短,无法满足长期储藏要..
-
蔬菜保鲜库可以通过抑制蔬菜表面微生物生长繁殖、抑制..
-
古浪芹菜因产于甘肃武威古浪县而得名,适合古浪青菜保..
-
兰州小韭是甘肃兰州优良地方品种之一,常温下兰州小韭..
-
陇南甜柿是甘肃省陇南市的一种特产水果,长期储藏陇南..
-
永靖草莓采摘之后常温下是无法长期储藏,建议将鲜草莓..
-
平川甜瓜是甘肃白银平川区的特产,长期储藏平川甜瓜建..
-
永昌蘑菇常温下蘑菇的储藏困难很容易腐烂变质,失去食..
-
嘉峪关泥沟胡萝卜是中国农产品地理标志之一,常温下嘉..
-
嘉峪关洋葱在常温下储藏周期短,想要长期储藏尤其是大..

























































































































































































































































































































































